Petit format flexible pour une grande efficacité de chauffe
Sur moins d’un demi-mètre carré d’espace au sol, la chaudière à pellets ETA ePE allie une efficacité énergétique remarquable, une excellente sécurité et un confort d’utilisation parfait. Il est même possible d’intégrer un séparateur de particules qui filtre les particules fines dans l’appareil compact d’aspect élégant.
La chaudière à pellets ETA ePE du fabricant de qualité autrichien ETA ne se contente pas de chauffer à moindre coût et dans le respect de l’environnement des maisons individuelles et des immeubles collectifs neufs uniquement. Cette merveille technologique peu encombrante est aussi idéale pour le remplacement d’une vielle chaudière. Grâce aux possibilités de raccordement flexibles, la chaudière à pellets ePE peut être simplement intégrée dans les systèmes de chauffage existants. Comme elle peut être exploitée de manière indépendante de l’air ambiant du fait qu’elle tire l’oxygène de l’air ambiant, elle peut être installée partout – par exemple même dans des habitations bien isolées.
Efficace et sûre
Comme tous les produits de qualité d’ETA, la chaudière à pellets ETA ePE fonctionne de manière extrêmement efficace. Ainsi, la chambre de combustion et l’échangeur de chaleur sont régulièrement nettoyés afin qu’aucun résidu ne puisse affecter le résultat de chauffage. Une soufflante d’aspiration et une sonde lambda assurent en outre que la quantité d’oxygène optimale est toujours alimentée dans la chambre de combustion pour une combustion optimale. La protection contre les retours de flammes grâce au sas rotatif garantit que le feu reste bien en toute sécurité dans la chambre de combustion.
Un grand confort, peu de travail
La chambre de combustion de la chaudière à pellets ETA ePE est automatiquement décendrée. Les cendres sont comprimées et collectées dans un conteneur facilement accessible qui peut être vidé simplement.
Par amour de l'environnement
Chauffer avec des pellets est extrêmement respectueux de l’environnement. Des résidus issus de l’industrie du bois sont recyclés comme combustible. Cela n’entraîne aucune contrainte pour le climat car la combustion du bois ne libère pas plus de CO2 que ce que le bois a absorbé avant lors de sa croissance.
La chaudière à pellets ePE dispose toutefois – en option – d’un vrai plus pour l’environnement : un séparateur de particules. Celui-ci assure que les particules fines créées lors de la combustion ne s’échappent pas, mais sont collectées dans le cendrier.
Tout le monde est gagnant
Faire des économies de chauffage, contribuer au développement de l’économie locale et protéger l’environnement : se chauffer au bois, c’est tout bénéfice. Le bois se régénère naturellement dans les forêts de notre pays, il offre donc une sécurité optimale pendant les temps de crise et est économique. Dans toute l’Europe, la superficie des forêts ne cesse de grandir.
Évolution des prix des différentes sources d'énergie
Il y a toujours de la place pour se chauffer avec des pellets
Pour un maximum de confort, le silo à pellets peut être installé à l’emplacement initial d‘une citerne à fioul. La proximité immédiate de la chaudière n’est pas requise, il peut être installé jusqu’à 20 m de distance. Avec un système d’extraction approprié, le silo à pellets peut même être installé sous la chaudière jusqu’à deux étages plus bas. Si la place manque, on peut aussi installer le silo dans un bâtiment adjacent ou un réservoir enterré. La seule condition requise est un silo sec pour ne pas abîmer les pellets. Dans les endroits plutôt humides, un coffrage en bois peut être utile.
Comment les granulés sont-ils acheminés vers la chaudière pellet?
Vis d’extraction :
Elle s’étend sur tout le long du silo, peut atteindre 5 m de long et transporte les pellets du silo vers les tuyaux d‘alimentation connectés à la chaudière. Une turbine d’aspiration les achemine ensuite vers la chaudière.
Après l‘alimentation, les tuyaux sont balayés à l’air comprimé. Ils ne se bouchent donc pas et fonctionnent toujours de manière optimale. Avec ce système standard, le silo peut être complètement vidé.
Les parois inclinées permettent aux granulés d’être toujours orientés vers la vis d‘extraction. Le tapis antichoc est suspendu en face des tubes de remplissage pour éviter l’impact des granulés contre la paroi lorsqu’ils sont injectés dans le silo par le camion. Il faut veiller à positionner les raccords de remplissage sur la face correspondant au prolongement de la vis d‘extraction, afin d‘assurer un remplissage optimal et ainsi une extraction performante.
Grâce à des sondes d’aspiration, il est également possible d’utiliser des locaux coudés comme silo à pellets.
Sondes d’aspiration :
Si la forme du silo ne convient pas pour une vis d’alimentation, le système de sondes d’aspiration ETA est la solution idéale. Les pellets glissent sur le plancher en bois lisse et incliné vers les quatre sondes d’aspiration qui transportent les granulés à tour de rôle vers la chaudière. La commutation automatique permet de ne pas interrompre l’alimentation en combustible, même lorsqu’une sonde ne reçoit plus de granulés. Pour être utilisable, ce système nécessite d’installer le silo en face de la chaudière au même étage ou plus haut, et de limiter la longueur du silo à 4 mètres. Contrairement à la vis sans fin, les sondes d’aspiration ne vident pas complètement le silo. Ce qui est préjudiciable si le volume de silo est limité.
Extraction avec taupe d'aspiration :
En raison de contraintes de construction, il se peut qu‘avec les systèmes d‘extractions conventionnels ETA, le volume de stockage de Pellets soit trop restreint. Pour cette raison, le système d‘extraction Taupe E3 de haute qualité offre La solution la plus judicieuse
Conseil ETA : Stockage en ETAbox
L’ETAbox est une solution particulièrement pratique. Elle peut être installée directement dans la chaufferie, à l’étage, dans une grange ou — sous couvert — à l’extérieur. Elle conserve les pellets au sec même dans des endroits humides. Une distance de 20 m d’aspiration de la box jusqu’à la chaudière ne pose aucun problème. La seule contrainte est que l’ETA Box ne peut se monter accolée à un mur. C’est pourquoi l’encombrement est plus important que pour un silo en maçonnerie pour la même capacité de stockage.
La chaleur à volonté
La chaudière ETA ePE ne se limite pas à générer de la chaleur, elle assure aussi une répartition optimale de celle-ci par l’intermédiaire du système ETA. La centrale de régulation gère parfaitement la distribution de l’eau chaude pour votre système de chauffage.
La chaudière ETA ePE est équipée d’une régulation électronique pour l’ensemble de l’installation de chauffage. Que vous souhaitiez intégrer une installation solaire, une installation de préparation d’eau chaude sanitaire ou un ballon tampon avec échangeur ECS, et que l’énergie soit transmise par des radiateurs ou un chauffage au sol, vous êtes aux commandes grâce à l’écran tactile sur la chaudière, votre ordinateur ou votre Smartphone. De simples images permettent de représenter le degré d’efficacité de votre installation solaire ou le niveau de remplissage du ballon tampon.
La perfection avec un ballon tampon
Le ballon tampon ETA est votre partenaire idéal. Le chauffage en automne ou au printemps, ou encore la préparation d’ECS en été exige souvent moins d’énergie que celle générée par la chaudière.
Grâce au ballon tampon, cette chaleur excédentaire est emmagasinée et disponible au besoin. Cela permet d’économiser du combustible et de moins solliciter la chaudière en évitant des démarrages à froid à répétition.
L’accumulateur à stratification est aussi le complément idéal d’une installation solaire. En été, il permet de réchauffer continuellement l’eau chaude sanitaire, à l’aide d’un échangeur de chaleur. Par contre, en hiver, les capteurs solaires parviennent rarement à générer les 60 °C nécessaires à la préparation d’ECS. L’eau chaude réchauffée par l’énergie solaire est ensuite recueillie par le chauffage par le sol ou mural. Celui-ci fonctionne principalement à des températures d’eau de chauffage de l’ordre de 30 à 40 °C seulement.
1 Commande à distance via la plateforme de communication meinETA
2 Que votre système soit équipé d’une installation solaire, d’une solution de préparation d’eau chaude sanitaire ou d’un ballon tampon avec module échangeur d’ECS : tout le système est régulé confortablement depuis l’écran d’affichage sur la chaudière.
3 ePE 7-20: Raccordement direct d’un circuit de chauffage de la chaudière sans pompes externes dans la chaufferie.
4 Un accumulateur à stratification ETA représente le complément idéal d’une ePE. Il permet d’emmagasiner l’énergie superflue et de la redistribuer en cas de besoin.
5 L’accumulateur à stratification ETA peut également être équipé d’un échangeur ECS ultérieurement, qui chauffe l’eau du réseau grâce à un échangeur de chaleur. Le risque de développement de germes et de bactéries est ainsi réduit au minimum.
6 Régulation individuelle par pièce ETA. Une température bien régulée, pièce par pièce.
7 Une excellente vue d’ensemble !
La sonde d’ambiance ETA affiche les températures ambiante et extérieure et permet de modifier aisément la température ambiance souhaitée.
8 Pour de petites installations solaires, mais avec un grand volume de ballon tampon, ou pour de très grandes installations solaires, le module de stratification permet d’augmenter sensiblement la performance de l’installation.
Sécurité, fiabilité et simplicité d’utilisation
En choisissant une nouvelle chaudière, vous prenez une décision qui aura un impact sur votre vie pendant de nombreuses années. Vous déterminez votre niveau de sécurité et votre dépendance en matière de maintenance ou de nettoyage. La qualité a un prix !
Automatiquement propre
L’ETA ePE se nettoie automatiquement — et pas à des intervalles réguliers, mais seulement lorsque c’est nécessaire. Ceci garantit des émissions minimes et des rendements optimaux pendant la saison de chauffage. Vous n’avez jamais à ouvrir la chambre de combustion et à vous salir. L’évacuation des cendres s’effectue automatiquement dans le foyer et les dépôts sont éliminés de l’échangeur de chaleur. La combustion extrêmement efficace des pellets laisse très peu de cendres. En outre, les cendres sont comprimées dans le collecteur.
De ce fait, il n’est pas nécessaire de vider souvent le cendrier. Et tout ça, sans ouvrir la porte de la chaudière, pour un maximum de confort.
Sas rotatif
Le système de haute sécurité. Le sas rotatif offre une protection absolue contre les retours de flamme : la combustion, c’est pour la chambre de combustion et nulle part ailleurs.
Une vis sans fin de dosage alimente le sas rotatif en pellets – et toujours avec la quantité optimale pour remplir le sas rotatif. Ainsi, on évite de caler les pellets dans les coins, de les comprimer ou de les broyer. Grâce à ce système conçu par ETA, les arêtes d’étanchéité du sas ne s’usent pas. La sécurité reste ainsi garantie sur l’ensemble de la durée de vie de la chaudière.
Possibilités de raccordement flexibles
Installation rapide partout.
Les raccords flexibles pour l’hydraulique, le tube de fumée et l’air alimenté permettent d’installer l’ETA ePE non seulement au mur, mais aussi dans un coin. Les raccords hydrauliques peuvent être tournés simplement dans la direction souhaitée vers la gauche ou la droite lors du montage, les raccords d’air alimenté ou de gaz évacués se situent au choix à gauche ou derrière.
Fonctionnement indépendant de l’air ambiant.
L’ETA ePE peut prélever l’oxygène nécessaire à la combustion à l’extérieur plutôt que de l’air ambiant à l’intérieur. La chaudière peut rester à l’intérieur du bâtiment chauffé sans avoir à prévoir une ventilation permanente.
Sonde lambda
C’est maintenant au mélange de jouer : Avec son aide, la proportion du mélange de combustible et d’oxygène est ajustée idéalement. Quelle que soit la qualité des pellets, le rendement est optimal. En outre, la sonde détecte aussitôt que l’allumage a réussi. Cela réduit le temps d’allumage et économise du courant et de l’argent.
Régulation
Polyvalente, mais pas compliquée : Que ce soit pour le contrôle de la combustion, l’alimentation en pellets, la gestion du ballon tampon, la préparation de l’eau chaude sanitaire, la régulation du circuit de chauffage contrôlée par les conditions climatiques avec un programme hebdomadaire pour deux circuits ou l’installation solaire connectée : tout se laisse commander par l’intermédiaire de l’écran tactile directement depuis la chaudière pellet ou via Internet à partir de n’importe quel PC, Le système est très complet avec de nombreuses fonctions, mais leur utilisation est très simple, car les images affichées par l’écran tactile le sont aussi.
En route pour la chaleur
Du réservoir à la pompe en passant par le foyer : tous les composants de haute qualité doivent fonctionner en parfaite synergie !
1 Turbine d’aspiration: Elle transporte les pellets du silo au réservoir intermédiaire de la chaudière.
2 Conteneur de stockage : ici sont stockés
temporairement 30 kg ou 70 kg de pellets, prêts
à être immédiatement brûlés. Il faut seulement
transporter les pellets du silo de stockage à la chaudière une ou deux fois par jour, respectivement pendant 10 minutes. C’est vous qui régulez au moment opportun.
3 Sas rotatif comme dispositif de sécurité contre l’incendie: Il constitue une barrière totalement étanche entre le silo et la chambre de combustion et garantit une protection totale contre les retours de flammes.
4 Extraction automatique des cendres dans le cendrier : la faible quantité de cendres qui tombent encore dans le cendrier après les processus de combustion optimisés est comprimée dans le collecteur dédié. Ainsi, il n’est pas nécessaire de vider fréquemment le cendrier. Lorsque le moment est venu, la chaudière envoie un SMS ou un courriel.
5 Sonde Lambda : le rapport de mélange de l’alimentation en combustible et en oxygène est idéalement coordonné à l’aide de la sonde lambda. Quelle que soit la qualité des pellets, le rendement est optimal.
6 Robinets de sécurité: une soupape de sécurité et un capteur électronique de pression protègent la chaudière de toute surpression. Un dispositif de purge rapide est également intégré pour éliminer l’air indésirable du circuit d’eau de chauffage. La chaudière n’a pas besoin d’une soupape de sécurité thermique, car il n’y a jamais suffisamment de combustible pour qu’une surchauffe puisse se produire.
7 Séparateur de particules : le séparateur de particules intégrable en option abaisse à un minimum la contrainte due à la poussière dans les gaz évacués. Un bénéfice majeur pour l’environnement !
8 Vanne mélangeuse: grâce au moteur de réglage enfichable, elle s’adapte parfaitement au système hydraulique existant ou prévu.
9 Pompe: sa vitesse de rotation est régulée, elle est hautement efficace et économe en énergie tout en assurant la circulation de l’eau de chauffage. Selon le type d’installation, elle prend en charge le chargement de l’accumulateur ou sert de pompe de chauffage par le sol ou avec des radiateurs.
10 Chambre de combustion: cet endroit permet de générer des températures suffisamment élevées pour brûler proprement et efficacement le bois.
Cela assure peu de cendres et des valeurs d’émission faibles, y compris en charge
partielle.
11 Circuit de chauffage pour ePE 7-20 : le circuit de chauffage intégrable en option est monté avec un faible encombrement dans la chaudière. Ainsi, il n’est pas nécessaire de monter une vanne mélangeuse ou une pompe externe dans la chaufferie pour ce circuit de chauffage.
Tout est inclus
Les éléments essentiels à la distribution de la chaleur, comme la pompe, la vanne mélangeuse et les organes d’arrêt, sont aussi intégrés dans la chaudière, tout comme la soupape de sécurité, le manomètre et le purgeur.
Uniquement ePE 7-20 : Le montage d’un circuit de chauffage à vanne mélangeuse est également possible en option.
Cela permet d’économiser de la place et de simplifier le montage.
Ventilateur d'aspiration
Sous-pression dans la chaudière. Ce ventilateur à régulation électronique de la vitesse de rotation assure en silence la dépression dans la chaudière et détermine la quantité d’air pour la combustion. Tout
en étant économe en énergie, il assure des résultats de combustion homogènes — même si la cheminée ne fournit pas le tirage adéquat.
Grille rotative à peigne de nettoyage
La propreté est synonyme d’une bonne combustion. Ce système breveté nettoie régulièrement le foyer en la débarrassant des cendres et de la suie — le tout automatiquement, après une certaine quantité de pellets brûlés. L’air nécessaire pour la combustion se répartit entre les lamelles propres de la grille. En outre, la grille est toujours maintenue un peu en mouvement. La douceur du mouvement de balancier attise les braises du foyer et
améliore encore la combustion.
Les cendres sont comprimées et transportées dans le cendrier. Même à plein régime de chaudière, il faut seulement vider de temps en temps. Lorsque le moment est venu, la chaudière envoie ou un courriel.
L’information s’affiche aussi sur l’écran tactile de la chaudière.
Le séparateur de particules rend le chauffage au bois encore plus propre et respectueux de l’environnement. Il extrait la poussière des gaz évacués à l’aide de la tension électrique.
Séparateur de particules
Un phénomène naturel exploité avec intelligence
Pourquoi y a-t-il toujours des dépôts de poussière sur l’écran de l’ordinateur ? Ce phénomène est dû au fait que les particules de poussière, chargées électrostatistiquement, sont attirées par l’écran. – ETA exploite cet effet dans son séparateur de particules.
Les particules contenues dans les fumées sont mises sous tension et ionisées à l’aide d’une électrode située dans le conduit de fumée. Elles se déposent sur la paroi intérieure du séparateur et ne peuvent plus s’échapper avec les fumées par la cheminée.
Simple et réglable de partout
Une bonne technologie se caractérise par sa convivialité. Vous n‘avez pas besoin d‘être un technicien pour utiliser les nombreuses fonctions d‘ETAtouch.
ETATOUCH : l’écran tactile pour contrôler votre chauffage
L‘époque des boutons et des régulateurs compliqués est révolu, car avec l‘écran tactile du système de régulation ETA, vous effectuez les réglages d‘une manière confortable et en toute simplicité. Les icônes sont explicites. Que vous souhaitiez augmenter ou diminuer la température de chauffage, modifier la période nocturne ou mettre la chaudière en marche réduite pendant les congés, — vous n’avez pas besoin de mode d’emploi pour trouver la bonne icône !
Via l‘écran tactile vous pilotez votre installation de chauffage, mais vous gardez également un œil sur tous les composants raccordés tels que le ballon tampon, l’installation solaire ou le ballon d’ECS.
MEINETA : la plateforme internet gratuite
Si votre régulation ETA est connectée à Internet, vous pouvez effectuer tous les réglages depuis votre téléphone portable, votre tablette ou votre PC. Vous contrôlez votre chauffage, où que vous soyez !
En vous connectant à www.meinETA.at, vous visualisez l’écran tactile comme si vous étiez devant votre chaudière. MeinETA vous informe aussi gratuitement par courriel les notifications de votre système de chauffage.
Au sein de votre propre réseau domestique vous pouvez via VPN avoir un accès direct sur la régulation ETAtouch du système de chauffage.
Assistance rapide
Donnez à votre installateur les droits d’accès à votre compte meinETA. Il pourra ainsi préparer son intervention chez vous au préalable. Il se peut même que le technicien n’ait pas à venir sur place, car il peut déjà vous dire par téléphone ce qu’il faut faire pour régler votre système de chauffage de manière optimale.
Vous pouvez voir qui peut accéder à votre contrôle via l‘affichage d‘état. Vous décidez et gérez l‘accès à votre réseau de partenaires !
Pour tablette, smartphone et PC
meinETA foncti onne sur tous les systèmes d‘exploitation courants tels que iOS ou Androïd. MeinETA est également accessible sur PC au moyen de tout navigateur Internet moderne.
Tout est très simple
Parfait pour votre maison intelligente
La régulati on ETAtouch peut être facilement intégrée dans les systèmes Smart-Home courant ainsi que dans une commande domotique centrale. Le mini serveur du système Loxone procède à un échange de données avec la chaudière via une interface ModbusTCP.
Et l‘interface ETA KNX disponible en option ainsi que quelques clics sans complication suffi sent pour l‘intégration à un système de bus KNX.
Exemple d'interfaces de la régulation individuelle par pièce ETA :
Qu`il s`agisse de sondes pour pièce individuelle Loxone, KNX ou ETA avec ou sans afficheur: Tout peut être contrôlé via ETAtouch.
Elle donne toujours les bons signaux aux contrôleurs de vanne, qui vérifient la quanti té d`eau chaude qu‘il faut pour chaque pièce ou circuit de chauffage.
Assistant d‘entretien
Entretenez simplement votre chaudière vous-même: les instructions sur l‘écran tactile de la chaudière vous guident étape par étape pour réaliser le nettoyage annuel.
Tout se règle par l’intermédiaire d’un écran : le standard ETA
Un système de chauffage moderne est seulement efficace quand il est bien régulé. C’est précisément la tâche de l’ETAtouch.
Toutes les fonctions pour les deux circuits de chauffage, la préparation ECS (accumulateur ou échangeur ECS) et l‘installation solaire sont déjà présentes dans la régulation ETAtouch, et ce sans supplément. Toutes les chaudières ETA sont équipées en série d‘une connexion Ethernet. Si vous connectez la chaudière pellet à Internet, vous pouvez piloter tous les composants depuis votre PC, votre tablette ou votre Smartphone.
Régulation de la chaudière pellet et de la combustion*
La modulation de la vitesse de rotation des moteurs permet d‘économiser du courant électrique. La régulation par sonde lambda et du temps d‘allumage augmente l‘efficacité. Tous les composants requis pour le fonctionnement sont surveillés électroniquement.
Gestion de l’accumulateur**
L’accumulateur dispose de trois à cinq sondes pour réguler le générateur de chaleur dans le système et distribuer l’énergie aux différents consommateurs. Avec cinq sondes, les régulations en cascade, la gestion de la qualité des chauffages au bois et la gestion des pics de charge sont prises en charge par le standard ETA.
Préparation ECS*
La préparation ECS s’effectue aussi bien par l’intermédiaire du module ECS ETA, du ballon ECS ou de l’accumulateur combiné. Pour toutes les variantes, nous pouvons piloter les pompes de circulation par un programme de temporisation ou en fonction des conditions climatiques.
Installations solaires**
Nous pouvons réguler un ou deux circuits solaires avec un ou deux ballons, la stratification à travers le module de stratification ETA, et également 2 champs de capteurs ainsi que trois consommateurs.
Deux circuits de chauffage à vannes de mélange contrôlées selon les conditions climatiques**
Ils fonctionnent avec un programme hebdomadaire avec plusieurs plages horaires et des fonctions supplémentaires automatiques et/ou manuelles. En option, le système peut être complété par une sonde d‘ambiance et une commande à distance.
Fonctions supplémentaires du système**
Détection d‘appareils de chauffage externes, comme par exemple des chaudières fioul/gaz, pompes à chaleur et poêles à bois, thermostat simple ou thermostat de température différentielle, demande de chauffage d‘appareils externes, comme par exemple des aérothermes, régulation de réseaux de chaleur avec ou sans vanne mélangeuse et de sous-station, régulation individuelle par pièce.
Coffret de régulation mural pour des extensions d‘installation
Toutes les régulations peuvent être étendues par des coffrets de commutation fixés au mur, avec ou sans écran tactile.
• * Régulation et sondes comprises dans le contenu de livraison standard
• ** Régulation selon la configuration, les sondes sont disponibles comme accessoires
Compréhensible même sans mode d’emploi : les symboles de l’écran tactiles sont univoques. Contrôler l’installation de chauffage devient un jeu d’enfant.
D'Autriche au monde entier
ETA est le spécialiste des installations de chauffage à biomasse, c’est-à-dire à bûches, pellets et bois déchiqueté. Les techniques les plus modernes sont utilisées conjointement aux ressources naturelles en plein développement.
ETA, c'est l'éfficacité
Les techniciens désignent le rendement d’un chauffage par la lettre grecque ?, prononcée « eta ». Les chaudières pellet ETA fournissent plus de chaleur tout en consommant moins de combustible, contribuent à la préservation de l’environnement et représentent une solution pérenne.
Le bois : ancien, mais performant
Le bois est notre combustible le plus ancien et le plus moderne. Entre le feu ouvert dans une caverne et une chaudière pellet moderne à biomasse, une longue histoire s’est inscrite. Au milieu du 20e siècle, le nombre de chauffages au bois a diminué brièvement. Le fioul était devenu le nouveau combustible à la mode. Un court intermède comparé à la longue histoire du bois. Nous savons aujourd’hui que le chauffage aux combustibles fossiles est sans avenir. Ces derniers contribuent au réchauffement de la planète et polluent l’environnement.
Leur approvisionnement n’est pas non plus garanti sur le long terme car non seulement leur quantité diminue, mais ils ne se renouvellent pas et proviennent en partie de régions politiquement instables. En revanche, le bois est une matière première renouvelable, locale et économique, qui ne porte pas préjudice à l’environnement en se consumant. Ce n’est donc pas une surprise si le chauffage au bois connait une croissance fulgurante.
Confort Ultra Performant
Depuis décembre 1998, la société ETA, basée en Haute-Autriche, conçoit et construit une nouvelle génération de chaudières pellet et de chauffage au bois. Ces chaudières pellet recèlent un grand nombre de technologies brevetées et disposent de la technique de régulation la plus moderne : elles sont donc extrêmement simples à utiliser. Le confort et l’efficacité ont fait la renommée des produits d’ETA dans le monde entier. Avec une capacité de production à 25 000 chaudières pellet par an et un taux d’exportation d’environ 80 % dans le monde entier, ETA compte parmi les leaders de la production de chaudières pellet à biomasse.
Vous achetez bien plus qu’une chaudière
Faire le choix d’une chaudière ETA au bois ou aux granulés de bois, c’est choisir une solution pérenne. Et pas seulement en ce qui concerne le combustible. En producteur responsable, ETA est présent à tous les niveaux. Des emplois stables sont ainsi créés dans la région. Hofkirchen an der Trattnach compte plus de 230 employés qui bénéficient de conditions de travail idéales, notamment d’une cantine d’entreprise, d’ateliers et d’entrepôts bien éclairés, sans oublier une station-service pour véhicules électriques alimentée par l’installation photovoltaïque de l’entreprise. Sa production permet de couvrir les besoins du bâtiment et d’économiser environ 230 t de CO2 par an.
Chaudière à pellets ETA ePE 7 jusqu'à 13 kW
1 Aspiration et retour silo DN50
2 Raccordement de l’écoulement de la soupape de sécurité. Écrou-raccord à joints plats R1″
3 Départ, écrou-raccord à joints plats R3/4″
4 Retour, écrou-raccord à joints plats R3/4″
5 Raccord d’air pour fonctionnement indépendant de l’air ambiant, DN80
6 Raccord d’évacuation des gaz de combustion Ø 113 et 130
X Cote variable en fonction de la ligne de 4 raccordement vers la cheminée
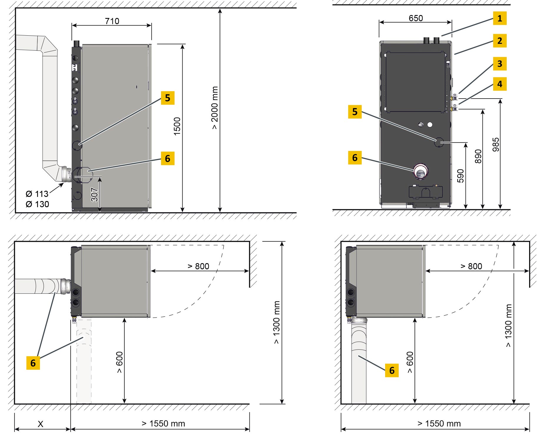
Chaudière à pellets ETA ePE 15 jusqu'à 20 kW
1 Conduite d’aspiration de pellets, air de retour de pellets DN50
2 Écoulement de la soupape de sécurité
3 Sonde départ, robinet à boisseau sphérique 3/4″
4 Retour, vanne à tournant sphérique 3/4″
5 Raccordement d’air pour un fonctionnement indépendant de l’air ambiant, DN80
6 Raccordement de l’évacuation des fumées
7 Optionnel : sonde départ circuit de chauffage 2, robinet à boisseau sphérique 3/4″
8 Optionnel : retour circuit de chauffage 2, robinet à boisseau sphérique 3/4″
Zone de maintenance optimale. Les composants installés en fixe (par ex. vase d’expansion, réservoir d’eau chaude) dans cette zone peuvent accroître le travail de nettoyage et de maintenance. Les côtes assorties d’un symbole d’étoile (*) identifient les côtes minimales pour la zone de maintenance.
X La distance « x » dans le graphique ci-dessous dépend du montage du conduit d’évacuation des gaz de combustion de la chaudière vers la cheminée
Chaudière à pellets ETA ePE 26 jusqu'à 40 kW
1 Conduite d‘aspiration de pellets, air de retour de pellets DN50
2 Écoulement de la soupape de sécurité
3 Sonde départ, robinet à boisseau sphérique 5/4“
4 Retour, robinet à tournant sphérique 5/4“
5 Prise d‘air pour un fonctionnement indépendant de l‘air ambiant, DN 110
6 Raccordement de l‘évacuation des fumées
Zone de maintenance optimale. Les composants installés en fixe (par ex. vase d‘expansion, réservoir d‘eau chaude) dans cette zone peuvent accroître le travail de nettoyage et de maintenance. Les cotes assorties d‘un symbole d‘étoile (*) identifient les côtes minimales pour la zone de maintenance.
X La distance « x » dans le graphique ci-dessous dépend du montage du conduit d‘évacuation des gaz de combustion de la chaudière vers la cheminée.

