Petite chaudière, grande puissance
La chaudière ETA Pellets Compact nécessite peu de place et convient parfaitement à tout projet de construction neuve ou de rénovation que ce soit pour des maisons individuelles, bâtiments collectifs ou publics.
Peut être installée partout
La chaudière ETA Pellets Compact (20-32Kw uniquement) peut fonctionner en circuit étanche grâce au prélèvement de l’air comburant directement à l’extérieur et assurer une étanchéité conforme aux réglementations en vigueur. Son esthétique sobre est un atout indéniable pour son intégration.
Pellets pour un confort maximal
Les pellets sont de l‘énergie concentrée dans de petits pellets compressés, issu des déchets de l‘industrie du bois. Le choix d‘un chauffage aux pellets assure un confort et un fonctionnement automatisé de l‘installation. Seul le cendrier doit être vidé périodiquement pendant la saison de chauffage. Le silo à pellets peut être à 20 m de distance de la chaudière sans prendre plus de place que la citerne à fioul. La chaudière ETA Pellets Compact est une solution idéale pour les projets de rénovation. Le coût d‘exploitation et le bilan CO2 baissent significativement.
Utilisation rationnelle des ressources
Contrairement aux énergies fossiles comme le fioul et le gaz, les pellets ont un bilan environnemental neutre. L’arbre absorbe au cours de sa croissance la même quantité de CO2 qu’il rejette plus tard lors de sa combustion. En outre, la quantité de CO2 libérée au cours de la combustion est la même que si l’arbre restait à pourrir au sol.
Tout le monde est gagnant
Faire des économies de chauffage, contribuer au développement de l’économie locale et protéger l’environnement : se chauffer au bois, c’est tout bénéfice. Le bois se régénère naturellement dans les forêts de notre pays, il offre donc une sécurité optimale pendant les temps de crise et est économique. Dans toute l’Europe, la superficie des forêts ne cesse de grandir.
Évolution des prix des différentes sources d'énergie
Il y a toujours de la place pour des pellets
Pour un maximum de confort, le silo à pellets peut être installé à l’emplacement initial d‘une citerne à fioul. La proximité immédiate de la chaudière n’est pas requise, il peut être installé jusqu’à 20 m de distance. Avec un système d’extraction approprié, le silo à pellets peut même être installé sous la chaudière jusqu’à deux étages plus bas. Si la place manque, on peut aussi installer le silo dans un bâtiment adjacent ou un réservoir enterré. La seule condition requise est un silo sec pour ne pas abîmer les pellets. Dans les endroits plutôt humides, un coffrage en bois peut être utile.
Une affaire de propreté
Les résidus sous forme de granulés de l’industrie du bois sont livrés avec un camion- ouffleur et injectés dans le silo. La livraison de pellets est donc particulièrement facile et confortable. Si le silo est étanche, la poussière reste à l’intérieur.
Comment les granulés sont-ils acheminés vers la chaudière pellet?
Vis d’extraction :
Elle s’étend sur tout le long du silo, peut atteindre 5 m de long et transporte les pellets du silo vers les tuyaux d‘alimentation connectés à la chaudière. Une turbine d’aspiration les achemine ensuite vers la chaudière.
Après l‘alimentation, les tuyaux sont balayés à l’air comprimé. Ils ne se bouchent donc pas et fonctionnent toujours de manière optimale. Avec ce système standard, le silo peut être complètement vidé.
Les parois inclinées permettent aux granulés d’être toujours orientés vers la vis d‘extraction. Le tapis antichoc est suspendu en face des tubes de remplissage pour éviter l’impact des granulés contre la paroi lorsqu’ils sont injectés dans le silo par le camion. Il faut veiller à positionner les raccords de remplissage sur la face correspondant au prolongement de la vis d‘extraction, afin d‘assurer un remplissage optimal et ainsi une extraction performante.
Les sondes d’aspiration permettent d’installer un silo à pellets dans quasiment toutes les pièces, même si celles-ci sont difficiles d’accès ou présentent des angles.
Sondes d’aspiration :
Si la forme du silo ne convient pas pour une vis d’alimentation, le système de sondes d’aspiration ETA est la solution idéale. Les pellets glissent sur le plancher en bois lisse et incliné vers les quatre sondes d’aspiration qui transportent les granulés à tour de rôle vers la chaudière. La commutation automatique permet de ne pas interrompre l’alimentation en combustible, même lorsqu’une sonde ne reçoit plus de granulés. Pour être utilisable, ce système nécessite d’installer le silo en face de la chaudière au même étage ou plus haut, et de limiter la longueur du silo à 4 mètres. Contrairement à la vis sans fin, les sondes d’aspiration ne vident pas complètement le silo. Ce qui est préjudiciable si le volume de silo est limité.
Système d‘extraction Taupe :
En raison de contraintes de construction, il se peut qu‘avec les systèmes d‘extractions conventionnels ETA, le volume de stockage de Pellets soit trop restreint. Pour cette raison, le système d‘extraction Taupe E3 de haute qualité offre La solution la plus judicieuse
Le système d‘extraction Taupe E3 permet de vider pratiquement entièrement le volume de stockage, et supprime les pentes de la construction en bois.
Conseil ETA : Stockage en ETAbox
L’ETAbox est une solution particulièrement pratique. Elle peut être installée directement dans la chaufferie, à l’étage, dans une grange ou — sous couvert — à l’extérieur. Elle conserve les pellets au sec même dans des endroits humides. Une distance de 20 m d’aspiration de la box jusqu’à la chaudière ne pose aucun problème. La seule contrainte est que l’ETA Box ne peut se monter accolée à un mur. C’est pourquoi l’encombrement est plus important que pour un silo en maçonnerie pour la même capacité de stockage.
Quelle doit être la taille de mon silo ?
La consommation totale de pellets par an en tonnes se calcule en divisant par 3 la charge calorifique en kilowatt. Pour l’encombrement des pellets en mètres cubes, on divise la charge calorifique par 2. Par exemple, pour une charge thermique de 90 kW, il faut 45 m3 ou environ 30 tonnes de pellets par an. En passant au chauffage avec des pellets, on peut aussi utiliser comme base de calcul la consommation de l’autre combustible.
1 tonne de pellets correspond environ à :
• 500 l de fioul
• 520 m3 de gaz naturel
• 750 l de gaz liquide
• 600 kg de charbon de coke
• 1 400 kWh de courant pour les pompes à chaleur géothermiques (coefficient de performance 3,4)
• 2 000 kWh de courant pour les pompes à chaleur air-air (coefficient de performance 2,5)
La chaleur à volonté
La PelletsCompact ne se contente pas de générer de la chaleur, elle assure aussi une répartition optimale de celle-ci par l‘intermédiaire de la régulation ETA. La régulation gère parfaitement la distribution de l‘eau chaude pour votre système de chauffage.
La chaudière Pellets Compact ETA est équipée d‘une régulation électronique pour l‘ensemble de l‘installation de chauffage. Que vous souhaitiez intégrer une installation solaire, une installation de préparation d‘eau chaude sanitaire ou un ballon tampon avec échangeur ECS, et que l‘énergie soit transmise par des radiateurs ou un chauffage au sol, vous êtes aux commandes grâce à l‘écran tactile sur
la chaudière, votre ordinateur ou votre Smartphone. De simples images permettent de représenter le degré d‘efficacité de votre installation solaire ou le niveau de remplissage du ballon tampon.
Pas de chauffage sans ballon tampon !
Naturellement, la Pellets Compact fonctionne aussi en solo. Le ballon tampon ETA est cependant son partenaire idéal. Chauffer en automne ou au printemps, ou encore préparer de l‘eau chaude sanitaire en été exige souvent moins d‘énergie que celle générée par la chaudière. Grâce au ballon tampon, cette chaleur excédentaire est
emmagasinée et disponible si nécessaire. Cela permet d‘économiser du combustible et de moins solliciter la chaudière en évitant des démarrages à répétition.
L‘accumulateur à stratification est aussi le complément idéal d‘une installation solaire. En été, il permet de réchauffer continuellement l‘eau chaude sanitaire, à l‘aide d‘un échangeur de chaleur. Par contre, en hiver, les capteurs solaires parviennent rarement à générer les 60 °C nécessaires pour la préparation de l‘eau chaude
sanitaire. L‘eau chaude réchauffée par l‘énergie solaire est ensuite recueillie par le chauffage au sol. Celui-ci travaille principalement avec des températures d‘eau de chauffage de l‘ordre seulement de 30 à 40 °C.
L‘accumulateur à stratification ETA peut aussi être équipé d‘un module de production ECS permettant de réchauffer continuellement l‘eau chaude sanitaire à l‘aide d‘un échangeur de chaleur. Le risque de développement de germes et de bactéries est ainsi réduit au minimum.
1 Commande à distance via la plateforme de communication meinETA
2 Le module de mélange ETA pour 2 circuits mélangés, fait économiser du temps et de l‘argent lors de son installation, car aucun cablâge de sonde, de pompe ou de vanne mélangeuse n‘est nécessaire.
3 Que votre système soit équipé d‘une installation solaire, d‘une solution de préparation d‘eau chaude sanitaire ou d‘un ballon tampon avec module de
production ECS : tout le système est régulé confortablement depuis l‘écran d‘affichage sur la chaudière.
4 Ne pensez pas à votre chaudière. Elle vous contacte lorsqu‘elle a besoin de vous ! Lorsqu‘il est temps de recharger, un voyant vert s‘allume sur la sonde de température de la pièce. Naturellement, vous pouvez aussi utiliser ce petit appareil très convivial pour régler la température de la pièce.
5 Un accumulateur à stratification ETA est le complément idéal de la PelletsCompact. Il permet d‘emmagasiner l‘énergie superflue et de la redistribuer en cas de besoin.
6 Le ballon tampon ETA peut être équipé d‘un module de production d‘eau chaude sanitaire instantané, l‘eau du réseau est réchauffée grâce à un échangeur de chaleur. On minimise ainsi les risques de dépôts et bactériens.
7 Pour des petites installations solaires, mais avec un grand volume de ballon tampon, ou pour des grandes installations solaires , le module de charge par stratification permet d‘augmenter sensiblement la performance de l‘installation.
Sécurité, fiabilité et simplicité d’utilisation
En choisissant une nouvelle chaudière, vous prenez une décision qui aura un impact sur votre vie pendant de nombreuses années. Vous déterminez votre niveau de sécurité et votre dépendance en matière de maintenance ou de nettoyage. La qualité a un prix !
Une faible quantité de cendres tombe dans le cendrier. Le cendrier est aisément accessible et facile à vider.
Propre automatiquement
La PelletsCompact ETA se nettoie automatiquement et pas à des intervalles réguliers, mais seulement lorsque c’est nécessaire. Ceci garantit des émissions minimes et des rendements optimaux pendant la saison de chauffage. Vous n’avez jamais à ouvrir la chambre de combustion et à vous salir. L’évacuation des cendres dans le foyer et de l‘échangeur s‘effectue automatiquement. La combustion extrêmement efficace des pellets laisse très peu de cendres. En outre, les cendres sont comprimées dans le cendrier. De ce fait, il n’est pas nécessaire de vider souvent le cendrier. Et tout cela, sans ouvrir la porte de la chaudière, en tout confort.
Écluse
Le système de haute sécurité : L’écluse offre une protection absolue contre les retours de flamme : la combustion, c’est pour le foyer et nulle part ailleurs.
Une vis de dosage alimente l’écluse en pellets, et toujours avec la quantité optimale pour remplir l’écluse. Ainsi, on évite de caler les pellets dans les coins, de les comprimer ou de les broyer. Grâce à ce système conçu par ETA, les arêtes d’étanchéité du sas ne s’usent pas. La sécurité reste ainsi garantie sur l’ensemble de la durée de vie de la chaudière.
Fonctionnement indépendant de l‘air ambiant
Il est possible sur une chaudière PU de prendre l‘air comburant, nécessaire à la combustion, de l‘extérieur et non du local chaufferie. Pour cette raison, la chaudière peut-être placée dans l‘habitation tout en évitant en plein hiver l‘ouverture d‘une fenêtre.
Sonde lambda
C’est maintenant au mélange de jouer : Avec son aide, la proportion du mélange de combustible et d’oxygène est ajustée idéalement. Quelle que soit la qualité des pellets, le rendement est optimal. En outre, la sonde détecte aussitôt que l’allumage a réussi. Cela réduit le temps d’allumage et économise du courant et de l’argent.
Régulation
Polyvalente, mais pas compliquée : Que ce soit pour le contrôle de la combustion, l’alimentation en pellets, la gestion du ballon tampon, la préparation de l’eau chaude sanitaire, la régulation du circuit de chauffage contrôlée par les conditions climatiques avec un programme hebdomadaire pour deux circuits ou l’installation solaire connectée : tout se laisse commander par l’intermédiaire de l’écran tactile directement depuis la chaudière pellet ou via Internet à partir de n’importe quel PC, Le système est très complet avec de nombreuses fonctions, mais leur utilisation est très simple, car les images affichées par l’écran tactile le sont aussi.
Tout est inclus
Recyclage retour réglé par une pompe haut rendement
Toujours à la température de service. Pour ne pas endommager l’échangeur de chaleur, l’eau qui revient du circuit de chauffage doit être portée à une température
déterminée. La pompe est hautement efficace et très économique en consommant seulement 15 à 35 W max.
Ventilateur de tirage
Chaudière à dépression: Ce ventilateur à régulation électronique de la vitesse de rotation assure en silence la dépression dans la chaudière et détermine la quantité d’air pour la combustion. Tout en étant économe en énergie, il assure des résultats de combustion homogènes, même si la cheminée ne fournit pas le tirage adéquat. Aucun modérateur de tirage n’est nécessaire au-dessous d’un tirage de cheminée de 15 Pa.
Grille rotative à peigne de nettoyage
La propreté est synonyme d’une bonne combustion. Ce système breveté nettoie régulièrement le foyer en le débarrassant des cendres et de la suie, le tout automatiquement, tous les 15 à 30 kg de pellets brûlés. L’air nécessaire pour la combustion se répartit entre les lamelles propres de la grille. En outre, la grille est toujours maintenue un peu en mouvement. La douceur du mouvement de balancier attise les braises du foyer et améliore encore la combustion.
Les cendres sont comprimées et transportées dans le cendrier d’une capacité de 12 litres. Même à plein régime de la chaudière, il ne faudra vider le cendrier que de temps en temps. Lorsque le moment est venu, la chaudière envoie un SMS ou un Email. L’information s’affiche aussi sur l’écran tactile de la chaudière.
Échangeur à condensation ETA BW
L’échangeur à condensation ETA (en option) permet jusqu‘à 10% d‘économies de combustible. Les raisons sont l’énergie produite
par la condensation générée ainsi que l’abaissement significatif des températures de fumées (avec un fonctionnement approprié).
Comparé aux systèmes de condensation conventionnels, l‘échangeur à condensation ETA établit de nouvelles règles en termes de sécurité des installations. Cela grâce au capteur de débit intégré et au contrôle actif de la quantité d’eau.
conditions :
- Cheminée insensible à la condensation et appropriée à la chaudière
- raccordement à l‘eau et à l‘égout (pour l‘évacuation des condensats)
- températures de retour peu élevée
En route pour la chaleur
Du réservoir à la pompe en passant par le foyer : tous les composants de haute qualité doivent fonctionner en parfaite synergie !
1 Turbine d’aspiration: Elle transporte les pellets du silo au réservoir intermédiaire de la chaudière.
2 Réservoir de stockage: : Ici sont stockés temporairement 30 kg de pellets, prêts à être immédiatement brûlés. Il faut seulement transporter les pellets du silo à la chaudière une ou deux fois par jour, respectivement pour 5 minutes. L‘horaire du dernier complément est programmable.
3 Écluse comme dispositif de sécurité incendie: Elle constitue une barrière totalement étanche entre le silo et la chambre de combustion et garantit une protection totale contre les retours de flammes.
4 Foyer en acier inoxydable : Ici les températures sont suffisamment élevées pour brûler proprement et efficacement le bois. Cette combustion garantit peu de cendres pour des valeurs d’émissions minimales même à puissance partielle.
5 Sonde Lambda : À l’aide de la sonde Lambda,
le taux de mélange d’alimentation de combustible et d’oxygène est idéalement ajusté respectivement l’un par rapport à l’autre. Quelle que soit la qualité des pellets, le rendement est optimal.
6 Extraction automatique des cendres du cendrier: Le peu de cendres qui sont produites, malgré une optimisation du dispositif de combustion, seront compressées dans le cendrier. Ainsi, il n’est pas nécessaire de vider souvent le cendrier. Lorsque le moment est venu, la chaudière envoie un SMS ou un courriel. Le cendrier est à l’extérieur de la chaudière et facilement accessible.
7 Vase d’expansion : Il peut collecter jusqu’à
18 litres d’eau de chauffage et compenser les variations de pression dans le système de chauffage.
8 Soupape de sécurité : Une soupape de sécurité et un capteur électronique de pression protègent la chaudière de toute surpression. Un dispositif de purge automatique est également intégré pour éliminer l’air indésirable du circuit d’eau de chauffage. La chaudière n’a pas besoin d’une soupape thermique, car la chaudière ne contient pas beaucoup de combustible et qu’une surchauffe est fortement improbable.
9 Ventilateur de tirage: ce ventilateur assure en silence la dépression requise dans la chaudière. En outre, il permet de réguler la quantité d’air et garantit ainsi la sécurité de la chaufferie.
10 Mélangeur: Il peut être utilisé de différentes manières en fonction du type d’installation. Il fonctionne comme mélangeur de départ avec un moteur de réglage déconnectable pour un circuit de chauffage avec régulation climatique ou comme mélangeur de recyclage retour pour le fonctionnement en mode ballon tampon.
11 Pompe électronique: elle est modulante, à haute efficacité et économe en énergie tout en assurant la circulation de l’eau de chauffage. Selon le type d’installation, elle prend en charge le chargement du ballon ou sert de pompe de chauffage par le sol ou avec des radiateurs.
12 Vanne d’inversion: : Au choix, nous pouvons avec une seule pompe désservir le circuit de chauffage ou la production d‘ECS. La vanne se commute toujours automatiquement sur le circuit pour lequel la pompe doit travailler.
13 Moteur de nettoyage: il assure la propreté dans la chaudière. L‘échangeur sera nettoyé automatiquement avec les tubulateurs. La grille sera également actionnée régulièrement de manière à être libérée des cendres. À l’aide des vis sans fin, toutes les cendres sont transportées entièrement de manière automatique hors du foyer pour être collectées dans le cendrier.
14 Raccordement de l‘air pour fonctionner indépendamment de l’air ambiant : Il permet de prélever l’air requis pour la combustion à l’extérieur. Grâce à cela, la chaudière peut-être installée dans chaque pièce, même équipée d‘une VMC. Attention à respecter les prescriptions nationales en vigueur en matière de la construction.
Simple et réglable de partout
Une bonne technique, c’est d’abord une technique conviviale. Pour utiliser les nombreuses fonctions ETAtouch, pas besoin d’être un technicien.
ETATOUCH : l’écran tactile de la chaudière
L‘époque des boutons et des régulateurs compliqués est révolu, car avec l‘écran tactile du système de régulation ETA, vous effectuez les réglages d‘une manière confortable et en toute simplicité. Les icônes sont explicites. Que vous souhaitiez augmenter ou diminuer la température de chauffage, modifier la période nocturne ou mettre la chaudière en marche réduite pendant les congés, — vous n’avez pas besoin de mode d’emploi pour trouver la bonne icône !
Via l‘écran tactile vous pilotez votre installation de chauffage, mais vous gardez également un œil sur tous les composants raccordés tels que le ballon tampon, l’installation solaire ou le ballon d’ECS.
MEINETA : la plateforme internet gratuite
Si votre chaudière pellet est connectée à Internet, vous pouvez effectuer tous les réglages depuis votre téléphone portable, votre tablette ou votre PC. Vous contrôlez votre chauffage, où que vous soyez ! En vous connectant à www.meinETA.at, vous visualisez l’écran tactile comme si vous étiez devant votre chaudière pellet !
Le silo à pellets doit être rempli, le cendrier doit être vidé, le temps est venu pour la prochaine maintenance de chauffage… Vous n’avez plus à vous soucier de ces détails. meinETA vous envoie un message de rappel gratuitement par courriel.
Assistance rapide
Donnez à votre installateur ou au technicien ETA les droits d’accès à votre compte meinETA. Il peut ainsi se préparer à vous rendre visite. Il se peut même que le technicien n’ait pas à venir sur place, car grâce à meinETA, il peut déjà vous dire par téléphone ce qu’il faut faire pour remettre le chauffage en marche. L’affichage d’état vous renseigne quant aux utilisateurs disposant d’un droit d’accès à la chaudière. Vous décidez toujours qui appartient à votre réseau de partenaires !
Pour tablette, smartphone et PC
meinETA foncti onne sur tous les systèmes d‘exploitation courants tels que iOS ou Androïd. MeinETA est également accessible sur PC au moyen de tout navigateur Internet moderne.
Tout est très simple
Parfait pour votre maison intelligente
La régulati on ETAtouch peut être facilement intégrée dans les systèmes Smart-Home courant ainsi que dans une commande domotique centrale. Le mini serveur du système Loxone procède à un échange de données avec la chaudière via une interface ModbusTCP.
Et l‘interface ETA KNX disponible en option ainsi que quelques clics sans complication suffi sent pour l‘intégration à un système de bus KNX.
Exemple d'interfaces de la régulation individuelle par pièce ETA :
Qu`il s`agisse de sondes pour pièce individuelle Loxone, KNX ou ETA avec ou sans afficheur: Tout peut être contrôlé via ETAtouch.
Elle donne toujours les bons signaux aux contrôleurs de vanne, qui vérifient la quanti té d`eau chaude qu‘il faut pour chaque pièce ou circuit de chauffage.
Assistant d‘entretien
Entretenez simplement votre chaudière vous-même: les instructions sur l‘écran tactile de la chaudière vous guident étape par étape pour réaliser le nettoyage annuel.
Tout se règle par l’intermédiaire d’un écran : le standard ETA
Un système de chauffage moderne est seulement efficace quand il est bien régulé. C’est précisément la tâche de l’ETAtouch.
Toutes les fonctions pour les deux circuits de chauffage, la préparation ECS (accumulateur ou échangeur ECS) et l‘installation solaire sont déjà présentes dans la régulation ETAtouch, et ce sans supplément. Toutes les chaudières ETA sont équipées en série d‘une connexion Ethernet. Si vous connectez la chaudière pellet à Internet, vous pouvez piloter tous les composants depuis votre PC, votre tablette ou votre Smartphone.
Régulation de la chaudière pellet et de la combustion*
La modulation de la vitesse de rotation des moteurs permet d‘économiser du courant électrique. La régulation par sonde lambda et du temps d‘allumage augmente l‘efficacité. Tous les composants requis pour le fonctionnement sont surveillés électroniquement.
Gestion de l’accumulateur**
L’accumulateur dispose de trois à cinq sondes pour réguler le générateur de chaleur dans le système et distribuer l’énergie aux différents consommateurs. Avec cinq sondes, les régulations en cascade, la gestion de la qualité des chauffages au bois et la gestion des pics de charge sont prises en charge par le standard ETA.
Préparation ECS*
La préparation ECS s’effectue aussi bien par l’intermédiaire du module ECS ETA, du ballon ECS ou de l’accumulateur combiné. Pour toutes les variantes, nous pouvons piloter les pompes de circulation par un programme de temporisation ou en fonction des conditions climatiques.
Installations solaires**
Nous pouvons réguler un ou deux circuits solaires avec un ou deux ballons, la stratification à travers le module de stratification ETA, et également 2 champs de capteurs ainsi que trois consommateurs.
Deux circuits de chauffage à vannes de mélange contrôlées selon les conditions climatiques**
Ils fonctionnent avec un programme hebdomadaire avec plusieurs plages horaires et des fonctions supplémentaires automatiques et/ou manuelles. En option, le système peut être complété par une sonde d‘ambiance et une commande à distance.
Fonctions supplémentaires du système**
Détection d‘appareils de chauffage externes, comme par exemple des chaudières fioul/gaz, pompes à chaleur et poêles à bois, thermostat simple ou thermostat de température différentielle, demande de chauffage d‘appareils externes, comme par exemple des aérothermes, régulation de réseaux de chaleur avec ou sans vanne mélangeuse et de sous-station, régulation individuelle par pièce.
Coffret de régulation mural pour des extensions d‘installation
Toutes les régulations peuvent être étendues par des coffrets de commutation fixés au mur, avec ou sans écran tactile.
• * Régulation et sondes comprises dans le contenu de livraison standard
• ** Régulation selon la configuration, les sondes sont disponibles comme accessoires
Compréhensible même sans mode d’emploi : les symboles de l’écran tactiles sont univoques. Contrôler l’installation de chauffage devient un jeu d’enfant.
D'Autriche au monde entier
ETA est le spécialiste des installations de chauffage à biomasse, c’est-à-dire à bûches, pellets et bois déchiqueté. Les techniques les plus modernes sont utilisées conjointement aux ressources naturelles en plein développement.
ETA, c'est l'éfficacité
Les techniciens désignent le rendement d’un chauffage par la lettre grecque ?, prononcée « eta ». Les chaudières pellet ETA fournissent plus de chaleur tout en consommant moins de combustible, contribuent à la préservation de l’environnement et représentent une solution pérenne.
Le bois : ancien, mais performant
Le bois est notre combustible le plus ancien et le plus moderne. Entre le feu ouvert dans une caverne et une chaudière pellet moderne à biomasse, une longue histoire s’est inscrite. Au milieu du 20e siècle, le nombre de chauffages au bois a diminué brièvement. Le fioul était devenu le nouveau combustible à la mode. Un court intermède comparé à la longue histoire du bois. Nous savons aujourd’hui que le chauffage aux combustibles fossiles est sans avenir. Ces derniers contribuent au réchauffement de la planète et polluent l’environnement.
Leur approvisionnement n’est pas non plus garanti sur le long terme car non seulement leur quantité diminue, mais ils ne se renouvellent pas et proviennent en partie de régions politiquement instables. En revanche, le bois est une matière première renouvelable, locale et économique, qui ne porte pas préjudice à l’environnement en se consumant. Ce n’est donc pas une surprise si le chauffage au bois connait une croissance fulgurante.
Confort Ultra Performant
Depuis décembre 1998, la société ETA, basée en Haute-Autriche, conçoit et construit une nouvelle génération de chaudières pellet et de chauffage au bois. Ces chaudières pellet recèlent un grand nombre de technologies brevetées et disposent de la technique de régulation la plus moderne : elles sont donc extrêmement simples à utiliser. Le confort et l’efficacité ont fait la renommée des produits d’ETA dans le monde entier. Avec une capacité de production à 25 000 chaudières pellet par an et un taux d’exportation d’environ 80 % dans le monde entier, ETA compte parmi les leaders de la production de chaudières pellet à biomasse.
Vous achetez bien plus qu’une chaudière
Faire le choix d’une chaudière ETA au bois ou aux granulés de bois, c’est choisir une solution pérenne. Et pas seulement en ce qui concerne le combustible. En producteur responsable, ETA est présent à tous les niveaux. Des emplois stables sont ainsi créés dans la région. Hofkirchen an der Trattnach compte plus de 230 employés qui bénéficient de conditions de travail idéales, notamment d’une cantine d’entreprise, d’ateliers et d’entrepôts bien éclairés, sans oublier une station-service pour véhicules électriques alimentée par l’installation photovoltaïque de l’entreprise. Sa production permet de couvrir les besoins du bâtiment et d’économiser environ 230 t de CO2 par an.
ETA PelletsCompact 20 - 50 kW
La PelletsCompact ETA convient à toutes les habitations. Elle peut être installée directement dans la cave ou, dans une buanderie ou un garage par exemple. Le silo à pellets peut se trouver à un maximum de 20 m ou jusqu‘à deux étages de distance.
1 Raccord d‘aspiration pellets – Conduite DN50
2 Raccord de reprise d‘air pellets – DN50
3 Départ avec robinet à boisseau sphérique et raccord fileté, filetage extérieur R1“
4 Retour avec robinet à boisseau sphérique et raccord fileté, filetage extérieur R1“
5 Vidange équipée d’un robinet de remplissage et de
vidange d‘ 1/2“
6 Conduite d‘écoulement de la soupape de sécurité,
écrou-raccord à joints plats R1“
7 Conduite d‘écoulement de la soupape de sécurité,
écrou-raccord à joints plats R1“ (20-32 kW)
Les dimensions entre parenthèses concernent la
chaudière de 40-50 kW.
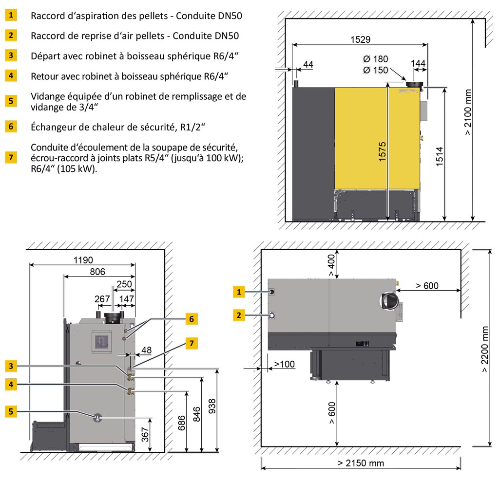
ETA PelletsCompact 60 - 105 kW
1 Raccord d‘aspiration des pellets – Conduite DN50
2 Raccord de reprise d‘air pellets – Conduite DN50
3Départ avec robinet à boisseau sphérique R6/4“
4 Retour avec robinet à boisseau sphérique R6/4“
5 Vidange équipée d’un robinet de remplissage et de
vidange de 3/4“
6 Échangeur de chaleur de sécurité, R1/2“
7 Conduite d‘écoulement de la soupape de sécurité,
écrou-raccord à joints plats R5/4“ (jusqu‘à 100 kW); R6/4“ (105 kW).

