Exactement comme je le désire
Une chaudière à bûches moderne est hautement efficace. Normalement, on charge la chaudière avec du bois une seule fois par jour. Lorsqu’il fait très froid, deux fois au maximum. Une chaudière à bûches ne va toutefois jamais fonctionner totalement automatiquement.
Économique et confortable
ETA a la solution idéale pour tous ceux qui utilisent le bois comme combustible extrêmement économique et qui souhaitent profiter du confort d’un chauffage totalement automatisé. La TWIN ETA est composée de deux chaudières de haute
qualité qui se complètent à merveille. La chaudière à bûches SH ETA peut être commandée avec une bride pour raccorder tout simplement un brûleur à pellets totalement automatique, et même plusieurs années plus tard sans transformation du système de chauffage ou raccordement de cheminée.
Système intelligent
Les deux chaudières TWIN ETA travaillent parfaitement ensemble. Si la chaudière à bûches s’éteint, elle le signale. Si au terme d’une période programmée, elle n’est pas rechargée en bois, la chaudière à pellets prend le relais, jusqu’à ce que la chaudière à bûches soit réalimentée. Votre domicile reste chauffé, même si votre absence se prolonge.
Tout le monde est gagnant
Faire des économies de chauffage, contribuer au développement de l’économie locale et protéger l’environnement : se chauffer au bois, c’est tout bénéfice. Le bois se régénère naturellement dans les forêts de notre pays, il offre donc une sécurité optimale pendant les temps de crise et est économique. Dans toute l’Europe, la superficie des forêts ne cesse de grandir.
La matière première naturelle offre un bilan de CO2 neutre, autrement dit, la combustion ne libère pas plus de CO2 que l’arbre en avait absorbé pendant sa croissance. La même quantité est libérée lorsque l’arbre pourrit en forêt. Chauffer au bois n’a pas d’incidence négative sur notre climat.
Évolution des prix des différentes sources d'énergie
Chauffage au bois en classe confort
Aucune chaudière à bûches ne fonctionne totalement automatiquement, mais la SH ETA effectue le gros du travail toute seule. Recharger du bois sans bois d’allumage et de papier, nettoyer l’échangeur de chaleur avec une poignée ou encore évacuer les
cendres par l’avant, voici quelques avantages vraiment confortables!
Chauffer, tout simplement.
Ouvrir la porte isolante extérieure. Le ventilateur de tirage démarre automatiquement et en silence pour alimenter le foyer avec suffisamment d’oxygène. Lorsque vous ouvrez la porte de la trémie de chargement pour charger des bûches de cinquante centimètres, le ventilateur de tirage active directement
l’aspiration des gaz de combustion par les portes du foyer. Elle empêche la fumée ou l’odeur de se répandre hors de la chaudière ouverte. Vous mettez le bois. Le foyer peut contenir une quantité de bois importante ne nécessitant une recharge qu’une fois par jour, voire deux fois par jour maximum lors des journées d’hiver.
Le nouveau bois brûle avec la braise résiduelle du feu. Vous n’avez pas besoin de papier, de copeaux de bois ou de bois d’allumage, même l’allumage automatique est superflu. Vous fermez la porte et tirez deux ou trois fois sur le levier de nettoyage : l’échangeur de chaleur est propre et à nouveau hautement efficace. Les cendres sont uniquement éliminées au besoin. Plutôt simple, non ? Très simple, en effet ! Impossible de faire plus convivial en matière de chauffage au bois!
Opérationnel en toute circonstance
La SH ETA est plus qu’une chaudière à bûches ou dans sa version TWIN, une chaudière à bûches et à pellets. Elle vous permet de contrôler tout votre chauffage et la préparation d’ECS, le tout, en parfaite synergie.
Vous pouvez intégrer les éléments suivants dans la gestion de la chaudière :
1 Une installation solaire: grâce à une surface de capteurs de 8 à 12 m2, vous profitez de l’eau chaude produite gratuitement par l’énergie solaire les jours de beau temps. Grâce au module de stratification ETA, l’installation solaire est parfaitement intégrée dans le système.
2 Un ballon tampon: un ballon tampon est indispensable pour le chauffage à bûches. Comme le feu dans la chaudière ne peut être que modérément réduit, la chaleur produite les jours de grande chaleur, surtout à la mi-saison, est supérieure à celle nécessaire pour le chauffage. La chaleur excédentaire peut être stockée dans le ballon tampon et utilisée en cas de besoin. Ainsi, vous n’ajoutez des bûches que lorsque vous avez le temps, sans vous stresser ! En été, la chaudière ne doit fonctionner que quelques jours, avec l’échangeur ECS peut-être une fois par semaine, pour préparer la quanti té d’eau chaude nécessaire !
3 La gestion de ballon tampon ETA assure en combinaison avec la décharge au démarrage, une chauffe particulièrement rapide de votre domicile. La chaleur résiduelle éventuelle du ballon tampon accélère en plus la chauffe.
4 Le recyclage retour automatique avec vanne mélangeuse protège la chaudière de la corrosion et économise de l’énergie en exploitant de manière
optimale la chaleur résiduelle à la fin de la phase de combustion.
5 Échangeur ECS : peu encombrant, il peut être monté sur le ballon tampon ou au mur, et prépare l’eau chaude de la douche, à boire ou pour le lave-vaisselle, avec une eau toujours fraîche et instantanée. Naturellement, un ballon d’ECS conventionnel peut aussi être intégré dans le système de chauffage.
6 Chaudières additionnelles : le système ETA peut aussi intégrer des chaudières à fioul, au gaz ou à pellets. Elles sont tout simplement démarrées à partir de la chaudière à bois.
Conseil ETA :
capacité du foyer x 10 = volume minimum requis du ballon tampon.
Capacité du foyer x 15 = volume optimal du ballon tampon avec une exploitation optimale de l’énergie et un confort idéal.
Si votre chaufferie n’est pas suffisamment haute pour l’accumulateur, deux petits ballons tampons peuvent être raccordés l’un à l’autre.
L'efficacité réside dans l'air de combustion
La qualité de la combustion conditionne le rendement et donc le niveau des émissions. C’est pourquoi l’oxygène est nécessaire dans des proportions variables selon la qualité de bois et sa teneur en humidité. La régulation de combustion ETA est un système finement ajusté qui régule avec précision l’alimentation en oxygène et donc la température dans le foyer.
Ventilateur de tirage
Sécurité et efficacité. Ce ventilateur assure en silence la dépression constante requise dans la chaudière. Quel que soit le niveau de remplissage du foyer, vous pouvez remettre du bois à tout moment et sans danger. Dès que vous ouvrez la porte de la chaudière, le ventilateur de tirage se met en route et empêche les gaz de combustion de sortir de la chaudière. En outre, le ventilateur de tirage assure l’alimentation en oxygène du foyer et donc une combustion idéale et une
exploitation optimale du combustible.
Deux clapets d'air automatiques
Toujours la quantité d’air correcte. Deux clapets d’air automatiques régulent précisément l’air primaire et secondaire en fonction de la demande. Le niveau d’oxygène est ainsi toujours suffisant dans le foyer pour assurer une exploitation optimale du combustible. En limitant la quantité d’oxygène dans le foyer, on évite une surchauffe de celle-ci, ce qui rallonge la durée de vie de la chaudière.
La sonde Lambda est un composant important de la technique de combustion. En conjonction avec la régulation de la combustion ETA, elle détermine le processus et la qualité de la combustion
Sonde Lambda
Assure un mélange correct. Peu importe que vous chauffiez avec du hêtre ou de l’épicéa, de grosses ou de petites bûches, que ce soit au démarrage de la chaudière ou en plein régime la combustion est idéale lorsque la quantité d’air d’alimentation est réglée correctement. La sonde Lambda
idéalement placée est en quelque sorte le cerveau de la technique de combustion. Elle régule la quantité d’oxygène consommée. Le résultat : un rendement élevé et des émissions minimes.
Échangeur de chaleur
Rendement maximal, nettoyage en toute simplicité. Une alimentation d’air ciblée dans le tube de l’échangeur de chaleur assure un rendement maximal et un échange homogène de la chaleur. Le nettoyage s’effectue presque tout
seul : il suffit de tirer quelques fois sur le levier de nettoyage pour nettoyer l’échangeur de chaleur. Vous n’avez pas besoin d’ouvrir de trappes de nettoyage ou de toucher la saleté.
Au besoin, automatisable. En option, l’échangeur de chaleur peut être équipé d‘une motorisation. L’échangeur de chaleur est alors nettoyé automatiquement par les turbulateurs mobiles. Ceci permet d’assurer des rendements élevés et un confort d’utilisation accru.
En route pour la chaleur
Chargement des bûches, allumage… Lorsqu’on dispose de la bonne technologie, ce n’est pas un problème d’obtenir un rendement maximal avec des émissions minimes. Les nombreux composants internes de la chaudière à bûches ETA ont été conçus pour une synergie parfaite, un résultat optimal et une expérience très confortable du chauffage au bois.
1 Porte isolante : parce que vous souhaitez avoir chaud dans votre logement et non dans la chaufferie, la porte extérieure isolante limite les pertes calorifiques par rayonnement, et le fait même très bien. La charnière de la porte peut être montée à gauche ou à droite, selon le sens d’alimentation des bûches.
2 Grande porte de remplissage : pour faciliter le chargement des bûches !
3 Aspiration des gaz de combustion : elle est active dès que vous remettez des bûches et assure que les fumées restent dans la chaudière lorsque la porte de remplissage est ouverte.
4 Foyer de grande capacité : 150 litres pour la SH 20/30 et même 223 litres pour la SH 40/50/60. Autrement dit, vous rechargez moins souvent.
5 Porte d’allumage : s’il ne reste plus de lit de braises dans la chaudière, vous pouvez réallumer la chaudière en un tour de main.
5a Allumage automatique en option : la chaudière démarre automatiquement avec les bûches grâce au système d’allumage automatisé disponible en option, et qui peut être facilement monté sur une chaudière déjà existante.
6 Foyer breveté à zones d’incandescence isolées : particulièrement résistant à la chaleur et équipé de joints de dilatation pour prévenir toute apparition de fissures en cas de fluctuations de la
température.
7 Bride à pellets en option pour l’ETA SH-P 20/30 : brûleur à pellets TWIN ETA.
8 Ventilateur d’aspiration : ce ventilateur assure en silence la dépression requise dans la chaudière. En outre, il permet de réguler la quantité d’air et garantit ainsi la sécurité de la chaufferie.
9 Levier de nettoyage : il peut être monté selon la place disponible au choix, à droite comme à gauche. Il suffit de tirer dessus pour activer le système de nettoyage par vibration de l’échangeur de chaleur. Vous n’avez pas besoin d’ouvrir de trappe de nettoyage ou d’entrer en contact avec les saletés.
9a Échangeur de chaleur à nettoyage automatique (en option) : l’échangeur de chaleur est nettoyé totalement automatiquement par des turbulateurs motorisés. Ceci permet d’assurer des rendements élevés et un confort d’utilisation accru.
10 Clapets d’air primaire et secondaire : les deux clapets sont contrôlés par la sonde Lambda pour toujours alimenter le foyer avec la quantité d’air idéale. Ils peuvent être montés au choix, à gauche comme à droite.
11 Sonde Lambda : grâce à l’étalonnage automatique du signal, elle permet une exploitation optimale de la valeur calorifique du bois.
12 Évacuation des cendres, nettoyage et maintenance par l’avant de la chaudière : ce n’est pas seulement confortable, mais permet aussi d’installer la chaudière dans de petites chaufferies. Il n’y a pas de portes latérales, ce qui permet d’économiser de la place.
13Écran tactile : pour une lecture plus confortable, l’écran tactile capacitif peut être incliné ou pivoté.
Foyer breveté à zones d'incandescence isolées
Le bois a besoin de chaleur, à savoir jusqu’à 1 100 °C pour brûler complètement et efficacement. Pour
que le foyer résiste à cette charge pendant de nombreuses années, il ne suffit pas d’utiliser des matériaux de haute qualité, il faut aussi une structure adaptée. Celle-ci est composée de plusieurs strates raccordées entre elles par des joints de dilatation. Ils empêchent en cas de fluctuation de la température de soumettre les plaques à des tensions pouvant fissurer le matériau. Les grilles en fonte à haute résistance thermique conduisent les flammes vers le foyer. En dessous se situent les buses qui injectent l’oxygène nécessaire à la combustion complète.
Bride à pellets pour ETA SH-P :
Cet accessoire optionnel rend le chauffage flexible. Si vous désirez un jour profiter d’un confort totalement automatisé d’un chauffage avec des pellets, vous n’aurez qu’à raccorder une TWIN ETA et les deux systèmes vont parfaitement fonctionner ensemble. Le brûleur peut être monté à gauche comme à droite de la chaudière à bûches en fonction de la configuration de la chaufferie, car la bride existe des deux côtés.
Pour rééquiper ultérieurement le chauffage, il est inutile de modifier le système de chauffage ou la cheminée !
ETAtouch : l'écran tactile de la chaudière
Le temps des boutons et des régulateurs difficiles d’accès est révolu : l’écran tactile de la chaudière SH ETA ou SH-TWIN permet d’effectuer les réglages confortablement et en toute simplicité. Les icônes sont simples et conviviales. Peu importe qu’il s’agisse du contrôle de la combustion, de
la gestion du ballon, de la préparation ECS, de la régulation du circuit de chauffage commandée par une sonde de température extérieure, avec un programme hebdomadaire pour deux circuits de chauffage, le rendement de l’installation solaire ou la surveillance de toutes les fonctions et moteurs : vous saurez utiliser intuitivement et sans mode d’emploi l’affichage tactile avec ses icônes simples ! Votre chaudière dispose en outre d’une connexion à Internet par l’intermédiaire de la connexion Ethernet. Vous contrôlez votre chauffage du bout.
du doigt avec votre Smartphone, tablette ou PC. Si vous le désirez, la chaudière peut vous envoyer des informations par email. La connexion USB permet de mettre à jour gratuitement le logiciel. En outre, vous avez accès au réseau partenaire meinETA. Ainsi, le cas échéant, vous pouvez donner l’accès de votre régulation à un technicien pour la maintenance. Vous économisez ainsi les frais de déplacement et de maintenance !
Porte d'allumage
Petite porte, grand confort La porte d’allumage vous permet d’allumer le bois sans passer par le foyer. Peu importe la quantité de bois avec laquelle la chaudière est remplie : avec l’amorçage par la petite porte, la chaudière n’a pas besoin de petit
bois ou d’accessoires d’allumage. Un peu de papier suffit.
La porte d’allumage est aussi très pratique pour le nettoyage du foyer. Les cendres peuvent être éliminées en utilisant tout simplement un pique-feu sur la grille (inclus avec la chaudière).
Un allumage automatique est disponible en option. Il peut aussi être installé par la suite.
Automatiquement simple
Nettoyage automatique pour une efficacité maximale. Les cendres sont transportées automatiquement du foyer dans le cendrier de 16 litres. Elle y est ensuite fortement comprimée pour n’avoir à vider le cendrier que deux ou trois fois par saison de chauffage.
L’échangeur de chaleur se nettoie lui-même de façon totalement automatiquement par des
turbulateurs motorisés. En toutes circonstances, le rendement est optimal !
Allumage automatique du brûleur à pellets. La régulation signale un besoin de chaleur, mais il n’y plus de bûches dans la chaudière… Pas de problème ! Si vous le souhaitez, le brûleur à pellets prend le relais. L’allumage est automatique.
Régulation du brûleur à pellets : si vous ne souhaitez pas que le brûleur à pellets se mette automatiquement en marche dès que la chaudière à bûches ne couvre plus les besoins calorifiques, vous pouvez décaler jusqu‘à 48 heures le démarrage du brûleur à pellets. Le fonctionnement avec les pellets peut aussi être limité dans le temps, à savoir pour un jour en particulier de la semaine ou une partie de la journée. Tout cela fonctionne par l’intermédiaire de l’écran tactile intuitif, via le smartphone, l’ordinateur ou la tablette.
Écluse
Le système de haute sécurité. L’écluse offre une protection absolue contre les retours de flamme : la combustion, c’est pour le foyer et nulle part ailleurs.
Une vis de dosage alimente l’écluse en pellets, et toujours avec la quantité optimale pour remplir l’écluse. Ainsi, on évite de caler les pellets dans les
coins, de les comprimer ou de les broyer. Grâce à ce système conçu par ETA, les arêtes d’étanchéité du sas ne s’usent pas. La sécurité reste ainsi garantie sur l’ensemble de la durée de vie de la chaudière.
Grille rotative à peigne de nettoyage
La propreté est synonyme d’une bonne combustion. Ce système breveté nettoie régulièrement le foyer en le débarrassant des cendres et de la suie, le tout automatiquement, tous les 15 à 30 kg de pellets brûlés. L’air nécessaire pour la combustion se répartit entre les lamelles propres de la grille. En outre, la grille est toujours maintenue un peu en mouvement. La douceur du mouvement de balancier attise les braises du foyer et améliore encore la combustion.
Les cendres sont comprimées et transportées dans le cendrier d’une capacité de 12 litres. Même à plein régime de la chaudière, il ne faudra vider le cendrier que de temps en temps. Lorsque le moment est venu, la chaudière envoie un SMS ou un Email. L’information s’affiche aussi sur l’écran tactile de la chaudière.
Allumage silencieux avec résistance d’allumage en céramique
Technique d’allumage : L’énergie consommée pour l’allumage est significativement inférieure à celle requise pour d’autres systèmes d’allumage. L’allumage lui-même fonctionne plus vite.
En route pour la chaleur
Deux foyers, un échangeur de chaleur, une chaudière : la TWIN ETA combine un brûleur à pellets de haute qualité avec une chaudière à bûches de grande puissance. Pour que les deux parties travaillent efficacement, il faut que tous les composants soient parfaitement synchronisés.
Partie brûleur à pellets :
1 Turbine d’aspiration très puissante: Elle transporte les pellets du silo au réservoir intermédiaire de la chaudière.
2 Conteneur de stockage: Ici sont stockés temporairement 60 kg de pellets, prêts à être immédiatement brûlés. Il faut seulement transporter les pellets du silo à la chaudière une ou deux fois par jour, respectivement pour 10 minutes. Vous programmez le régulateur en ce sens.
3 Écluse comme dispositif de sécurité incendie : elle constitue une barrière totalement étanche entre le silo à pellets et l’allumage et garantit une protection totale contre les retours de flammes.
4 Foyer à pellets : parce que les propriétés de la combustion des pellets diffèrent de celles du bois bûches, c’est seulement avec un foyer séparé que l’efficacité maximale est obtenue.
5 Grille rotative avec peigne de nettoyage : ce système breveté nettoie régulièrement la chambre de combustion en la débarrassant des cendres et de la suie.
Brûleur à pellets et chaudière à bûches :
6 Bride de jonction dans le foyer à zones d’incandescence : Les foyers pour pellets et bûches sont ici connectés.
7Ventilateur d’aspiration : Ce ventilateur assure en silence la dépression requise dans la chaudière. En outre, il permet de réguler la quantité d’air et garantit ainsi la sécurité de la chaufferie.
Partie chaudière à bûches :
9 Porte isolante : parce que vous souhaitez avoir chaud dans votre logement et non dans la cave, la porte extérieure isolante limite les pertes calorifiques par rayonnement, et le fait même très bien.
10 Grande porte de remplissage : pour faciliter le chargement des bûches !
11 Aspiration des gaz de combustion : elle est active dès que vous remettez des bûches et assure que les fumées restent dans la chaudière lorsque la porte de remplissage est ouverte.
12 Trémie de combustible de 100 litres : volume optimal du ballon tampon entre 1 000 et 1 650 litres.
13 Chambre de combustion résistante à la chaleur : assure une combustion optimale et une longue durée de vie.
14Écran tactile : pour une lecture plus confortable, l’écran tactile intuitive peut être incliné et/ou pivoté.
Combinaison parfaite
Avec la TWIN, vous combinez les avantages d’une chaudière à bûches avec ceux d’un brûleur à pellets. Les bûches sont en effet le combustible le moins cher. Lorsqu’il n’y a plus de bûches, vous restez au chaud grâce au système automatique de commutation (réglable) qui bascule en mode de chauffage automatique avec les pellets.
Automatiquement, toujours au chaud.
Lorsqu’il n’y a plus de bûches à brûler et que la chaudière ne produit plus de chaleur, le système injecte l’eau chaude du ballon tampon. Si cette énergie est aussi épuisée, le système TWIN permet quand même de chauffer. Même sans remettre de bûches. Le système totalement automatique à pellets de la TWIN ETA prend le relais. Vous
n’avez rien à faire, aucun réglage.
Naturellement, le système automatique permute aussi inversement. Lorsque vous
voulez utiliser des bûches, même si le système automatique à pellets fonctionne, il n‘y a aucun problème ! Dès que vous ouvrez la porte isolante, le brûleur à pellets s’arrête. Vous chargez les bûches, allumez la chaudière et c’est parti !
Une régulation pour tout le système de chauffage
Que ce soit : la puissance de chauffage, l‘alimentation en pellets, le gestion du ballon tampon, la préparation d‘eau chaude sanitaire, la régulation du circuit de chauffage avec sonde extérieure pour deux circuits ou la commande d‘une installation solaire ; tout cela peut être contrôlées et commandées directement sur la chaudière via l‘écran tactile ou via internet avec un ordinateur, un smartphone ou une tablette.
Le système est très complet, mais son utilisation reste très simple, car les icônes sur l‘écran tactile parlent d‘eux-même.
Toujours de la place pour les pellets
Pour un maximum de confort, le silo à pellets peut être installé à l’emplacement initial d‘une citerne à fioul. La proximité immédiate de la chaudière n’est pas requise, il peut être installé jusqu’à 20 m de distance. Avec un système d’extraction approprié, le silo à pellets peut même être installé sous la chaudière jusqu’à deux étages plus bas. Si la place manque, on peut aussi installer le silo dans un bâtiment adjacent ou un réservoir enterré. La seule condition requise est un silo sec pour ne pas abîmer les pellets. Dans les endroits plutôt humides, un coffrage en bois peut être utile.
Une affaire de propreté
Les résidus sous forme de granulés de l’industrie du bois sont livrés avec un camion- ouffleur et injectés dans le silo. La livraison de pellets est donc particulièrement facile et confortable. Si le silo est étanche, la poussière reste à l’intérieur.
Quelle doit être la taille de mon silo ?
La consommation totale de pellets par an en tonnes se calcule en divisant par 3 la charge calorifique en kilowatt. Pour l’encombrement des pellets en mètres cubes, on divise la charge calorifique par 2. Par exemple, pour une charge thermique de 90 kW, il faut 45 m3 ou environ 30 tonnes de pellets par an. En passant au chauffage avec des pellets, on peut aussi utiliser comme base de calcul la consommation de l’autre combustible.
1 tonne de pellets correspond environ à :
• 500 l de fioul
• 520 m3 de gaz naturel
• 750 l de gaz liquide
• 600 kg de charbon de coke
• 1 400 kWh de courant pour les pompes à chaleur géothermiques (coefficient de performance 3,4)
• 2 000 kWh de courant pour les pompes à chaleur air-air (coefficient de performance 2,5)
Comment les granulés sont-ils acheminés vers la chaudière pellet?
Vis d’extraction :
Elle s’étend sur tout le long du silo, peut atteindre 5 m de long et transporte les pellets du silo vers les tuyaux d‘alimentation connectés à la chaudière. Une turbine d’aspiration les achemine ensuite vers la chaudière.
Après l‘alimentation, les tuyaux sont balayés à l’air comprimé. Ils ne se bouchent donc pas et fonctionnent toujours de manière optimale. Avec ce système standard, le silo peut être complètement vidé.
Les parois inclinées permettent aux granulés d’être toujours orientés vers la vis d‘extraction. Le tapis antichoc est suspendu en face des tubes de remplissage pour éviter l’impact des granulés contre la paroi lorsqu’ils sont injectés dans le silo par le camion. Il faut veiller à positionner les raccords de remplissage sur la face correspondant au prolongement de la vis d‘extraction, afin d‘assurer un remplissage optimal et ainsi une extraction performante.
Les sondes d’aspiration permettent d’installer un silo à pellets dans quasiment toutes les pièces, même si celles-ci sont difficiles d’accès ou présentent des angles.
Sondes d’aspiration :
Si la forme du silo ne convient pas pour une vis d’alimentation, le système de sondes d’aspiration ETA est la solution idéale. Les pellets glissent sur le plancher en bois lisse et incliné vers les quatre sondes d’aspiration qui transportent les granulés à tour de rôle vers la chaudière. La commutation automatique permet de ne pas interrompre l’alimentation en combustible, même lorsqu’une sonde ne reçoit plus de granulés. Pour être utilisable, ce système nécessite d’installer le silo en face de la chaudière au même étage ou plus haut, et de limiter la longueur du silo à 4 mètres. Contrairement à la vis sans fin, les sondes d’aspiration ne vident pas complètement le silo. Ce qui est préjudiciable si le volume de silo est limité.
Quelle doit être la taille de mon silo ?
Puissance calorifique des pellets = 4,9 kWh/kg
Poids des pellets = 650 kg/m³
Formules empiriques pour la consommation en pellets
9 kW de charge calorifique / 3 = 3 tonnes de pellets/an
9 kW de charge calorifique / 2 = 4,5 m³/an
Avez-vous suffisamment de place dans votre chaufferie ?
Utilisez-vous principalement des bûches ? Vous consommez peu de pellets à l’année ? Vous n’avez peut-être pas besoin d’un silo à pellets, mais uniquement d’un réservoir à pellets ETA à remplissage manuel. Il se raccorde directement à la chaudière avec des flexibles. Vous pouvez le remplir avec des sacs de pellets et chauffer
pendant une semaine sans avoir à le réalimenter. Sa capacité est nettement
plus importante que celle du petit réservoir intermédiaire directement monté sur la chaudière.
Conseil ETA : Stockage en ETAbox
L’ETAbox est une solution particulièrement pratique. Elle peut être installée directement dans la chaufferie, à l’étage, dans une grange ou — sous couvert — à l’extérieur. Elle conserve les pellets au sec même dans des endroits humides. Une distance de 20 m d’aspiration de la box jusqu’à la chaudière ne pose aucun problème. La seule contrainte est que l’ETA Box ne peut se monter accolée à un mur. C’est pourquoi l’encombrement est plus important que pour un silo en maçonnerie pour la même capacité de stockage.
Simple et réglable de partout
Une bonne technique, c’est d’abord une technique conviviale. Pour utiliser les nombreuses fonctions ETAtouch, pas besoin d’être un technicien.
ETATOUCH : l’écran tactile de la chaudière
L‘époque des boutons et des régulateurs compliqués est révolu, car avec l‘écran tactile du système de régulation ETA, vous effectuez les réglages d‘une manière confortable et en toute simplicité. Les icônes sont explicites. Que vous souhaitiez augmenter ou diminuer la température de chauffage, modifier la période nocturne ou mettre la chaudière en marche réduite pendant les congés, — vous n’avez pas besoin de mode d’emploi pour trouver la bonne icône !
Via l‘écran tactile vous pilotez votre installation de chauffage, mais vous gardez également un œil sur tous les composants raccordés tels que le ballon tampon, l’installation solaire ou le ballon d’ECS.
MEINETA : la plateforme internet gratuite
Si votre chaudière pellet est connectée à Internet, vous pouvez effectuer tous les réglages depuis votre téléphone portable, votre tablette ou votre PC. Vous contrôlez votre chauffage, où que vous soyez ! En vous connectant à www.meinETA.at, vous visualisez l’écran tactile comme si vous étiez devant votre chaudière pellet !
Le silo à pellets doit être rempli, le cendrier doit être vidé, le temps est venu pour la prochaine maintenance de chauffage… Vous n’avez plus à vous soucier de ces détails. meinETA vous envoie un message de rappel gratuitement par courriel.
Assistance rapide
Donnez à votre installateur ou au technicien ETA les droits d’accès à votre compte meinETA. Il peut ainsi se préparer à vous rendre visite. Il se peut même que le technicien n’ait pas à venir sur place, car grâce à meinETA, il peut déjà vous dire par téléphone ce qu’il faut faire pour remettre le chauffage en marche. L’affichage d’état vous renseigne quant aux utilisateurs disposant d’un droit d’accès à la chaudière. Vous décidez toujours qui appartient à votre réseau de partenaires !
Pour tablette, smartphone et PC
meinETA foncti onne sur tous les systèmes d‘exploitation courants tels que iOS ou Androïd. MeinETA est également accessible sur PC au moyen de tout navigateur Internet moderne.
Tout est très simple
Parfait pour votre maison intelligente
La régulati on ETAtouch peut être facilement intégrée dans les systèmes Smart-Home courant ainsi que dans une commande domotique centrale. Le mini serveur du système Loxone procède à un échange de données avec la chaudière via une interface ModbusTCP.
Et l‘interface ETA KNX disponible en option ainsi que quelques clics sans complication suffi sent pour l‘intégration à un système de bus KNX.
Exemple d'interfaces de la régulation individuelle par pièce ETA :
Qu`il s`agisse de sondes pour pièce individuelle Loxone, KNX ou ETA avec ou sans afficheur: Tout peut être contrôlé via ETAtouch.
Elle donne toujours les bons signaux aux contrôleurs de vanne, qui vérifient la quanti té d`eau chaude qu‘il faut pour chaque pièce ou circuit de chauffage.
Assistant d‘entretien
Entretenez simplement votre chaudière vous-même: les instructions sur l‘écran tactile de la chaudière vous guident étape par étape pour réaliser le nettoyage annuel.
Tout se règle par l’intermédiaire d’un écran : le standard ETA
Un système de chauffage moderne est seulement efficace quand il est bien régulé. C’est précisément la tâche de l’ETAtouch.
Toutes les fonctions pour les deux circuits de chauffage, la préparation ECS (accumulateur ou échangeur ECS) et l‘installation solaire sont déjà présentes dans la régulation ETAtouch, et ce sans supplément. Toutes les chaudières ETA sont équipées en série d‘une connexion Ethernet. Si vous connectez la chaudière pellet à Internet, vous pouvez piloter tous les composants depuis votre PC, votre tablette ou votre Smartphone.
Régulation de la chaudière pellet et de la combustion*
La modulation de la vitesse de rotation des moteurs permet d‘économiser du courant électrique. La régulation par sonde lambda et du temps d‘allumage augmente l‘efficacité. Tous les composants requis pour le fonctionnement sont surveillés électroniquement.
Gestion de l’accumulateur**
L’accumulateur dispose de trois à cinq sondes pour réguler le générateur de chaleur dans le système et distribuer l’énergie aux différents consommateurs. Avec cinq sondes, les régulations en cascade, la gestion de la qualité des chauffages au bois et la gestion des pics de charge sont prises en charge par le standard ETA.
Préparation ECS*
La préparation ECS s’effectue aussi bien par l’intermédiaire du module ECS ETA, du ballon ECS ou de l’accumulateur combiné. Pour toutes les variantes, nous pouvons piloter les pompes de circulation par un programme de temporisation ou en fonction des conditions climatiques.
Installations solaires**
Nous pouvons réguler un ou deux circuits solaires avec un ou deux ballons, la stratification à travers le module de stratification ETA, et également 2 champs de capteurs ainsi que trois consommateurs.
Deux circuits de chauffage à vannes de mélange contrôlées selon les conditions climatiques**
Ils fonctionnent avec un programme hebdomadaire avec plusieurs plages horaires et des fonctions supplémentaires automatiques et/ou manuelles. En option, le système peut être complété par une sonde d‘ambiance et une commande à distance.
Fonctions supplémentaires du système**
Détection d‘appareils de chauffage externes, comme par exemple des chaudières fioul/gaz, pompes à chaleur et poêles à bois, thermostat simple ou thermostat de température différentielle, demande de chauffage d‘appareils externes, comme par exemple des aérothermes, régulation de réseaux de chaleur avec ou sans vanne mélangeuse et de sous-station, régulation individuelle par pièce.
Coffret de régulation mural pour des extensions d‘installation
Toutes les régulations peuvent être étendues par des coffrets de commutation fixés au mur, avec ou sans écran tactile.
• * Régulation et sondes comprises dans le contenu de livraison standard
• ** Régulation selon la configuration, les sondes sont disponibles comme accessoires
Compréhensible même sans mode d’emploi : les symboles de l’écran tactiles sont univoques. Contrôler l’installation de chauffage devient un jeu d’enfant.
D'Autriche au monde entier
ETA est le spécialiste des installations de chauffage à biomasse, c’est-à-dire à bûches, pellets et bois déchiqueté. Les techniques les plus modernes sont utilisées conjointement aux ressources naturelles en plein développement.
ETA, c'est l'éfficacité
Les techniciens désignent le rendement d’un chauffage par la lettre grecque ?, prononcée « eta ». Les chaudières pellet ETA fournissent plus de chaleur tout en consommant moins de combustible, contribuent à la préservation de l’environnement et représentent une solution pérenne.
Le bois : ancien, mais performant
Le bois est notre combustible le plus ancien et le plus moderne. Entre le feu ouvert dans une caverne et une chaudière pellet moderne à biomasse, une longue histoire s’est inscrite. Au milieu du 20e siècle, le nombre de chauffages au bois a diminué brièvement. Le fioul était devenu le nouveau combustible à la mode. Un court intermède comparé à la longue histoire du bois. Nous savons aujourd’hui que le chauffage aux combustibles fossiles est sans avenir. Ces derniers contribuent au réchauffement de la planète et polluent l’environnement.
Leur approvisionnement n’est pas non plus garanti sur le long terme car non seulement leur quantité diminue, mais ils ne se renouvellent pas et proviennent en partie de régions politiquement instables. En revanche, le bois est une matière première renouvelable, locale et économique, qui ne porte pas préjudice à l’environnement en se consumant. Ce n’est donc pas une surprise si le chauffage au bois connait une croissance fulgurante.
Confort Ultra Performant
Depuis décembre 1998, la société ETA, basée en Haute-Autriche, conçoit et construit une nouvelle génération de chaudières pellet et de chauffage au bois. Ces chaudières pellet recèlent un grand nombre de technologies brevetées et disposent de la technique de régulation la plus moderne : elles sont donc extrêmement simples à utiliser. Le confort et l’efficacité ont fait la renommée des produits d’ETA dans le monde entier. Avec une capacité de production à 25 000 chaudières pellet par an et un taux d’exportation d’environ 80 % dans le monde entier, ETA compte parmi les leaders de la production de chaudières pellet à biomasse.
Vous achetez bien plus qu’une chaudière
Faire le choix d’une chaudière ETA au bois ou aux granulés de bois, c’est choisir une solution pérenne. Et pas seulement en ce qui concerne le combustible. En producteur responsable, ETA est présent à tous les niveaux. Des emplois stables sont ainsi créés dans la région. Hofkirchen an der Trattnach compte plus de 230 employés qui bénéficient de conditions de travail idéales, notamment d’une cantine d’entreprise, d’ateliers et d’entrepôts bien éclairés, sans oublier une station-service pour véhicules électriques alimentée par l’installation photovoltaïque de l’entreprise. Sa production permet de couvrir les besoins du bâtiment et d’économiser environ 230 t de CO2 par an.
Chaudière à bûches SH ETA
1 Échangeur thermique de sécurité à filetage extérieur R1/2“
2 Retour chaudière avec manchon R5/4“
3 Départ chaudière avec manchon R5/4“
4 Vidange avec manchon R1/2“
Le levier de nettoyage et les servomoteurs peuvent être montés à gauche ou à droite, au choix.
Les dimensions entre parenthèses concernent la chaudière de 40-60 kW.
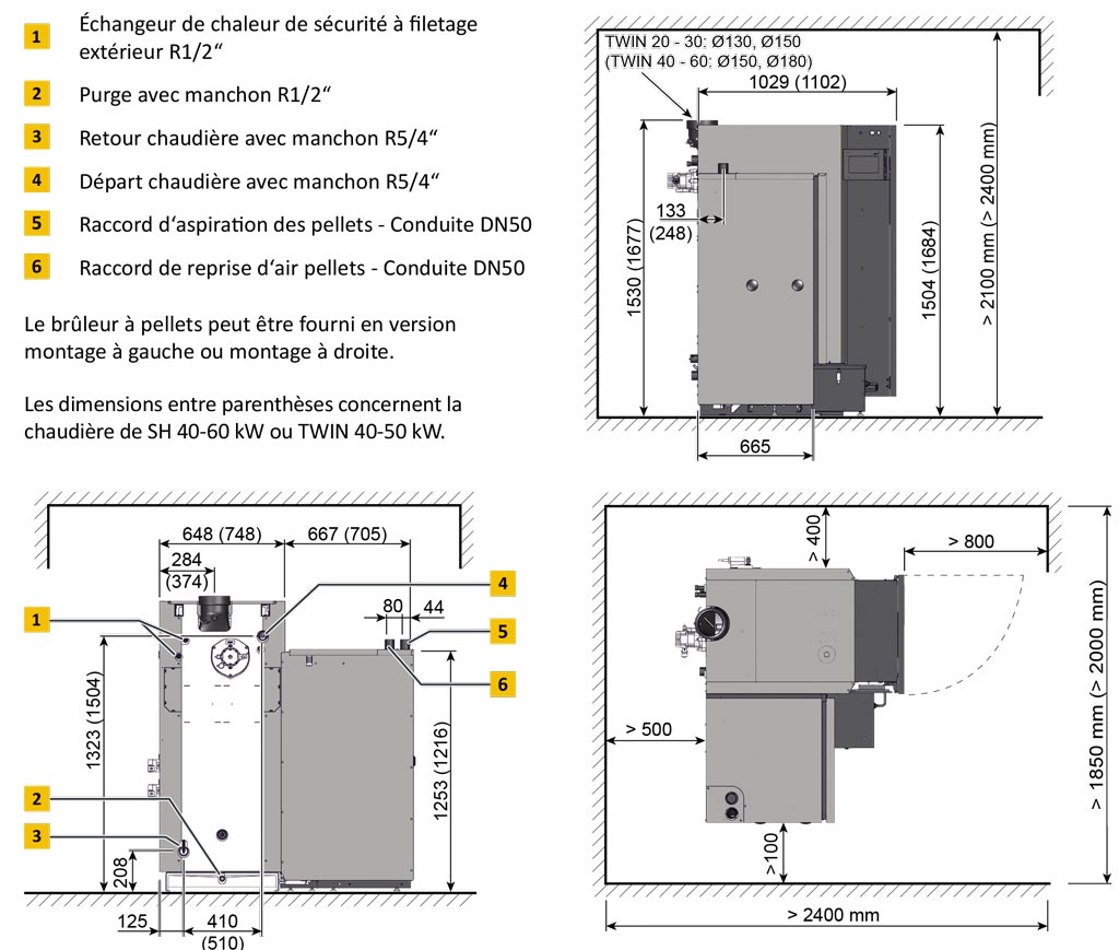
La chaudière mixte Twin ETA
1 Échangeur de chaleur de sécurité à filetage extérieur R1/2“
2 Purge avec manchon R1/2“
3 Retour chaudière avec manchon R5/4“
4 Départ chaudière avec manchon R5/4“
5 Raccord d‘aspiration des pellets – Conduite DN50
6 Raccord de reprise d‘air pellets – Conduite DN50
Le brûleur à pellets peut être fourni en version montage à gauche ou montage à droite.
Les dimensions entre parenthèses concernent la chaudière de SH 40-60 kW ou TWIN 40-50 kW.

